Mine Shaft Construction – Turkey
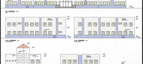
Project Name: Mine Shaft Construction Country: TURKEY Finance Source: CBİ-Çayeli Copper Mining Inc. Tags: Turkey, Local, Superstructure, Design Narrative Description of Project: The object of the job is to perform dynamic analysesRead More…
TR
EN