Project Name: Engineering Services for SASBAÅž Samsun Free Trade Zone Construction
Country: TURKEY
Finance Source: Private Sector
Tags: Turkey, Local, Superstructure, Design
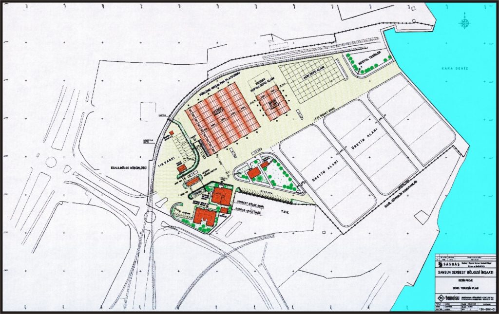
The SASBAŞ Samsun Bayındır Free-Trade Zone is located on a 73,000 sq.m plot of land in the port of Samsun, a major trading city on Black Sea Coast. It consists of 5000 sqm of warehouse space, 35 premises for offices, banks and businesses, covering a total of 1150 sqm, 6000 sqm of open-air warehousing space and a 26000 sqm production facility.
The engineering services provided by TEMELSU within the scope of the project cover:
– Detail survey of the project area and its environment and preparing the 1/500 scale maps of about 200 000 m² area to be used in General Arrangement, drainage and sewerage system, road and interchange designs.
– Geological and geotechnical investigations of the construction site since it is approximately 50 years old fill area that consists of about 2 m thick organic mud underlying 1.5 to 4 m. thick dense sand.
– General arrangement and architectural design of the structures that are:
• Custom Building: two storey, 830 m²
• Sasbaş General Directorate Building: two storey, 874 m²
• Warehouse: 9 m height, 5000 m²
• Office Buildings: 9 m height, 1125 m²
– Structural and Dynamic Analyses, final and detailed designs of the above mentioned buildings. In dynamic analyses and structural designs, National Seismic Design Code (May 1997) has been used. An intensive work has been carried out during the design to overcome the liquefaction and soil bearing capacity problems as well as to reduce the side-sway deformations of 9 m high precast concrete frames.
TR
EN


